от 19 898 ₽









Укажите даты поездки, и мы покажем вам актуальные цены
Даты не выбраны
Если не знаете конкретные даты, выберите примерные числа, чтобы сориентироваться по цене.
199 Chemin Des Sixt, Сен-Жан-де-Сикст
Расположение
Всё, что нужно для ночлега! Мини-отель «Le Grenier 1821 - Mini chalet - Centre village - AravisTour» находится в Сен-Жан-де-Сиксте. Этот мини-отель располагается в центре города. Перед сном есть возможность прогуляться вдоль главных достопримечательностей. Рядом с мини-отелем — Музей естествознания, Музей истории и искусств Роторуа и Ла-Грейндж-Парк.
В мини-отеле
Хотите оставаться на связи? В мини-отеле есть бесплатный Wi-Fi. Для путешественников на машине организована парковка. Здесь рады животным. Допускается размещение с питомцами. Гостям доступны и другие услуги. Например, прачечная.
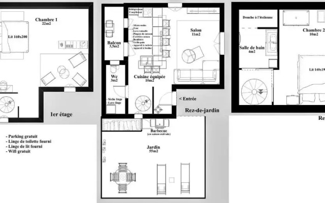
Факты о мини-отеле
Тип розетки
Французская
230 В / 50 Гц
Количество номеров
оплачивается отдельно
| Заселение |
|---|
| После 15:00 |
| Выезд |
|---|
| До 11:00 |
| Заселение |
|---|
| После 15:00 |
| Выезд |
|---|
| До 11:00 |
Please inform Le Grenier 1821 - Mini chalet - Centre village - AravisTour in advance of your expected arrival time. You can use the Special Requests box when booking, or contact the property directly with the contact details provided in your confirmation. This property will not accommodate hen, stag or similar parties. A damage deposit of EUR 150 is required. The host charges this 14 days before arrival. This will be collected by credit card. You should be reimbursed on check-out. Your deposit will be refunded in full via credit card, subject to an inspection of the property. Please note that the apartment is not suitable for guests with reduced mobility due to its narrow circular staircase. |
Для некоторых тарифов доступна оплата банковской картой при бронировании на сайте. Можно частично или полностью оплатить бронирование баллами. Можно оплатить бронирование с помощью промокода, если он у вас есть. |
Если вы хотите оплатить заказ безналичным способом как юридическое лицо, пожалуйста, напишите на corp@ostrovok.ru
Клиентам
Партнёрам
Безопасность платежей
Надёжная защита данных от ведущих платёжных систем.